Structural CAD Services for Construction Projects
The importance of structural CAD services cannot be overstated in the construction industry. These services are not just a mere support, but rather a crucial element that ensures accuracy and precision in the design and implementation of structural components for buildings and infrastructure projects. By utilizing advanced software and tools, structural CAD services deliver comprehensive and detailed drawings that enable architects, engineers, and construction professionals to visualize and understand the intricacies of a project before it even begins.
This not only saves time but also minimizes errors, ensuring that the final structure is safe, stable, and meets all necessary regulations. In essence, these services act as a strong foundation upon which successful construction projects are built. Structural CAD services play a crucial role in the construction industry, serving as an indispensable foundation for successful projects. Their importance cannot be overstated, as they provide accuracy and precision in the design and implementation of structural components. Utilizing advanced software and tools, these services offer comprehensive and detailed drawings that allow architects, engineers, and construction professionals to visualize every aspect of a project with clarity.
This capability is invaluable as it enables stakeholders to understand the intricacies of a structure even before construction begins. By providing this level of detail, structural CAD services save both time and resources by minimizing errors and preventing costly rework during the construction process. The ability to identify any potential issues early on ensures that structures are safe, stable, and compliant with all necessary regulations. Furthermore, these services facilitate effective collaboration among different stakeholders involved in a project.
With accurate drawings at their disposal, architects can communicate their vision clearly to engineers who can then translate it into feasible designs. This seamless communication streamlines decision-making processes throughout the project’s lifecycle. In summary, structural CAD services act as an essential component in achieving successful construction projects. They provide a solid foundation built on accuracy, precision, efficiency while minimizing errors. By utilizing these services from inception through completion of a project’s lifecycle ensures safer structures that meet regulatory standards – ultimately leading to satisfied clients and stakeholders alike.
The digital design process can be efficiently executed using advanced CAD software such as AutoCAD and Revit Structure, in accordance with specific requirements. With the advancements in technology, Structural Engineers are now utilizing these cutting-edge software tools for precise building construction.
Here are some of the widely employed Structural CAD Services for building structures:
3D Modeling: Structural CAD software allows for the creation of detailed and accurate 3D models of building structures. This enables engineers to visualize the project in a realistic manner and identify any potential issues or clashes before construction begins.
Structural Analysis: CAD software includes powerful analysis tools that help structural engineers assess the strength, stability, and safety of building structures. It allows for complex calculations to be performed quickly and accurately, ensuring that the design meets all necessary codes and regulations.
Drafting and Detailing: CAD software simplifies the drafting process by automating repetitive tasks such as dimensioning, annotation, and symbol placement. This saves time and improves accuracy in producing construction drawings.
BIM Integration: Building Information Modeling (BIM) is becoming increasingly important in the construction industry. Structural CAD services can seamlessly integrate with BIM platforms like Revit Structure, allowing for enhanced collaboration between architects, engineers, contractors, and other stakeholders throughout the design process.
Clash Detection: With multiple disciplines working on a building project simultaneously, clash detection becomes crucial to avoid conflicts between different systems like structural elements clashing with mechanical or electrical components. Structural CAD software helps identify these clashes early on so that they can be resolved before construction begins.
Construction Documentation: Detailed documentation is essential for successful execution of a building project. Structural CAD services assist in generating accurate quantity takeoffs, material schedules, shop drawings, fabrication details, and other construction-related documents.
Collaboration & Coordination Tools: Many structural CAD software now offer collaboration features that enable real-time communication between team members working on different aspects of a project.
At 7Solution India, we understand the significance of these services and offer comprehensive solutions to cater to the needs of construction projects. Let’s delve into the importance of structural CAD services and how they contribute to the success of construction projects.
What are Structural CAD Services?
Structural CAD services involve the use of computer-aided design (CAD) software to create precise and detailed drawings and models for various structural elements of a construction project. These services cover a range of activities, including 2D drafting, 3D modeling, detailing, and analysis of structural components.
The Importance of Structural CAD Services:
Accurate and Detailed Designs:
Structural CAD services ensure that the designs of structural elements, such as beams, columns, and foundations, are accurate and detailed. This helps in preventing design errors and ensures that the structures can withstand the required loads and forces.
Structural CAD services play a crucial role in the construction industry by ensuring that the designs of structural elements are accurate and detailed. By utilizing advanced software and techniques, these services help in preventing design errors and ensuring that structures can withstand the required loads and forces.
Accuracy is key when it comes to structural design, as even small errors can have significant consequences. Structural CAD services employ skilled professionals who are well-versed in using specialized software to create precise 2D and 3D models of various structural components like beams, columns, and foundations. These models provide a comprehensive understanding of how these elements will fit together within the overall structure. By meticulously analyzing these models, structural engineers can identify any potential issues or weaknesses before construction begins.
This proactive approach helps prevent costly mistakes or delays during the construction phase. Additionally, detailed CAD drawings serve as valuable references for contractors on-site, ensuring that they have clear instructions on how to execute the designs accurately. Furthermore, structural CAD services enable engineers to simulate various load scenarios on their models. This allows them to assess how different forces might impact the structure’s stability and integrity. By making adjustments based on these simulations, engineers can optimize their designs for maximum safety and performance.
In summary, structural CAD services provide invaluable support throughout the design process by creating accurate and detailed representations of structural elements. By catching potential issues early on and enabling engineers to make informed decisions about their designs’ strength and durability, these services contribute significantly to safer constructions that meet all necessary requirements.
Efficient Project Management:
Structural CAD services contribute to efficient project management by providing detailed drawings and models that assist in the planning and coordination of construction activities.
These drawings act as valuable references for contractors, engineers, and architects during the construction process. Structural CAD services play a crucial role in streamlining project management processes by offering comprehensive drawings and models that aid in the efficient planning and coordination of construction activities.
These detailed drawings serve as invaluable references for contractors, engineers, and architects throughout the entire construction process. By utilizing structural CAD services, project stakeholders can benefit from accurate and precise representations of their designs. These detailed drawings showcase every aspect of the structure, including measurements, materials specifications, and necessary connections. This level of detail eliminates any ambiguity or misinterpretation during construction, resulting in smoother workflows and reduced chances of errors or rework. Moreover, structural CAD services facilitate effective communication among team members involved in the project. Contractors can easily access these drawings to understand specific requirements quickly, ensuring that they follow the design intent accurately.
Engineers can review and analyze the models thoroughly to anticipate potential issues or conflicts before they arise on-site. Architects can use these drawings as a visual tool to communicate their vision more effectively with other stakeholders. Additionally, having access to reliable structural CAD services allows for better coordination between different trades involved in a construction project. The accurate representation of architectural design elements combined with mechanical systems’ details helps identify any potential clashes early on. By addressing these clashes before starting actual construction work, delays caused by rework or redesign are minimized significantly. Furthermore, using structural CAD services contributes to improved efficiency during site operations. With clear and precise reference models at hand, workers can easily understand how various components come together while adhering to safety guidelines.
As a result, productivity is enhanced as time spent trying to interpret complicated 2D plans is greatly reduced. In conclusion, incorporating structural CAD services into project management practices offers numerous benefits that contribute to overall efficiency within construction projects.
The clarity provided by detailed drawings helps minimize errors and ensures effective communication among all stakeholders involved while promoting smooth coordination between different trades on-site. By leveraging these advantages offered by structural CAD services throughout the construction process from planning to completion, projects can be executed with greater precision, resulting in successful and timely outcomes.
Enhanced Collaboration:
Structural CAD services facilitate collaboration among various stakeholders involved in a construction project. The detailed drawings and models enable effective communication and understanding of the structural requirements, resulting in better coordination and fewer conflicts.
Cost and Time Savings:
By utilizing structural CAD services, construction companies can save costs and reduce project timelines. Accurate designs and detailed drawings help in optimizing material usage, minimizing waste, and avoiding rework. Additionally, the ability to simulate and analyze structural elements in a virtual environment helps in identifying potential issues and resolving them early on.
Compliance with Standards and Codes:
Structural CAD services ensure that the designs and drawings comply with local building codes, regulations, and industry standards. This is crucial for obtaining necessary permits and approvals, as well as ensuring the safety and integrity of the structures.
7Solution India’s Structural CAD Services:
At 7Solution India, we offer a comprehensive range of structural CAD services to support construction projects. Our services include:
- 2D Drafting: We provide accurate 2D drafting services for structural components, creating detailed drawings that capture all necessary information.
- 3D Modeling: Our team creates precise 3D models of structural elements, allowing for a better visualization of the final product and aiding in design coordination.
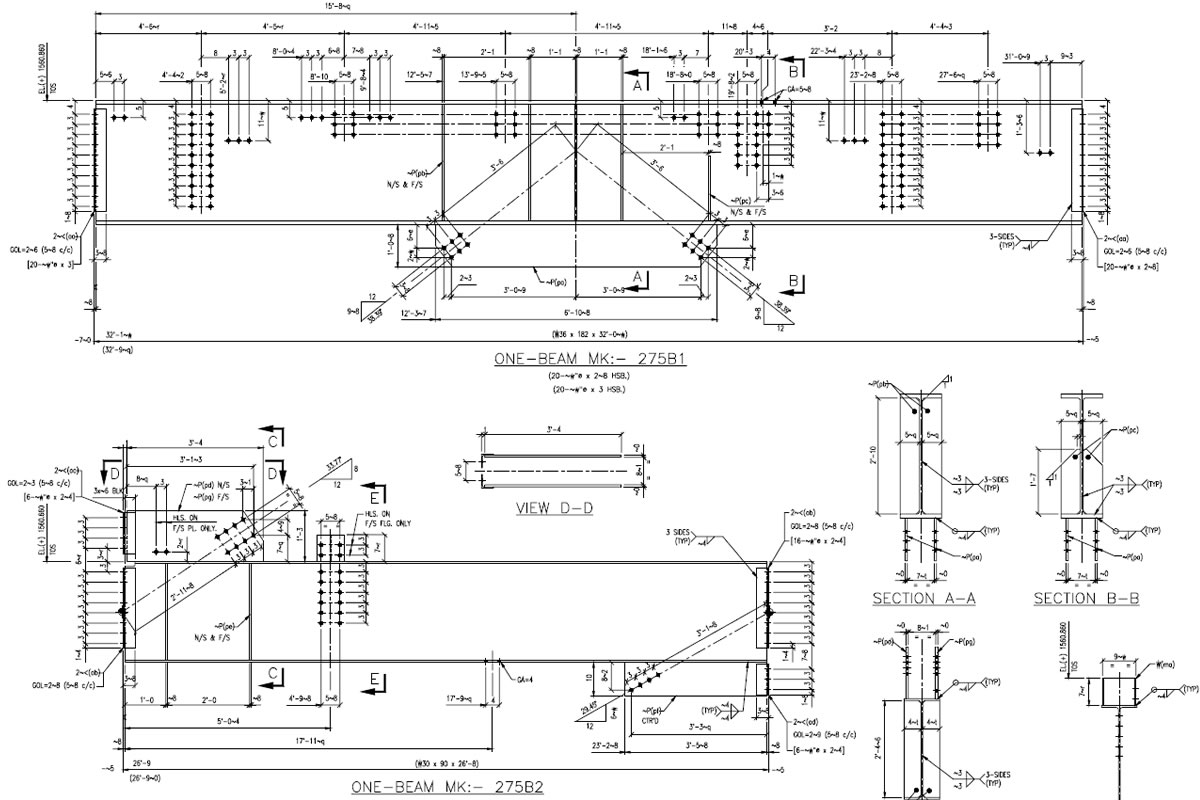
- Detailing and Shop Drawings: We specialize in producing detailed and comprehensive shop drawings, including reinforcement detailing, steel connections, and precast elements.
- Structural Analysis and Design: Our experts utilize advanced software to perform structural analysis and design, ensuring that the structural components meet safety and performance requirements.
- BIM Integration: We can integrate our structural CAD services with Building Information Modeling (BIM) platforms, enabling a more holistic view of the project and facilitating better coordination among different disciplines.
In conclusion, structural CAD services are an integral part of the construction industry, providing accurate designs and detailed drawings for structural components.
7Solution India offers comprehensive structural CAD services to support construction projects, ensuring efficiency, accuracy, and compliance. Trust us as your partner to deliver high-quality solutions that meet your specific project requirements.

