7Solution India
Steel Shop Drawing
Structural Fabrication Drawing Services in USA
Steel Structure Fabrication Drawing | Structural Steel Fabrication Drawings | Steel Fabrication Drawings

Steel Detailing Company is your go-to expert in engineering services, specializing in Steel Fabrication Detailing and Assembly Fabrication Drawing. As a trusted industry leader, we offer a comprehensive range of Engineering Fabrication Drawings and much more to meet your specific needs.

Our dedicated team ensures the highest level of precision and quality for all our services, including Steel Detailing, Steel Shop Drawings, Metal Fabrication Drawings, Structural Steel Shop Drawings, and more. With us by your side, you can expect nothing less than top-notch drawings delivered promptly within your specified timeframe. Trust us to exceed your expectations every time.

At Steel Detailing Company, we take pride in being your go-to expert in engineering services. With our specialization in Steel Fabrication Detailing and Assembly Fabrication Drawing, we offer a comprehensive range of solutions to cater to your specific needs.

As a trusted industry leader, we understand the importance of precision and quality in engineering drawings. Our dedicated team ensures that every project is executed with the highest level of accuracy and attention to detail. Whether it’s Steel Detailing, Steel Shop Drawings, Metal Fabrication Drawings, or Structural Steel Shop Drawings, you can rely on us to deliver top-notch drawings that meet your requirements. We value your time and understand the importance of meeting deadlines. That’s why we prioritize prompt delivery within your specified timeframe. You can trust us to exceed your expectations every time by providing exceptional services that are tailored to exceed industry standards. Partner with Steel Detailing Company for all your engineering fabrication drawing needs and experience our commitment to excellence firsthand. Contact us today for more information on how we can assist you in achieving success in your projects.

We appreciate you for enlightening us about Steel Detailing Company‘s outstanding engineering services. It’s truly impressive to learn that you are a renowned industry leader with expertise in a wide range of areas, including Steel Fabrication Detailing, Assembly Fabrication Drawing, and Engineering Fabrication Drawings. Your specialization in these aspects is certainly commendable and speaks volumes about the quality of your services.

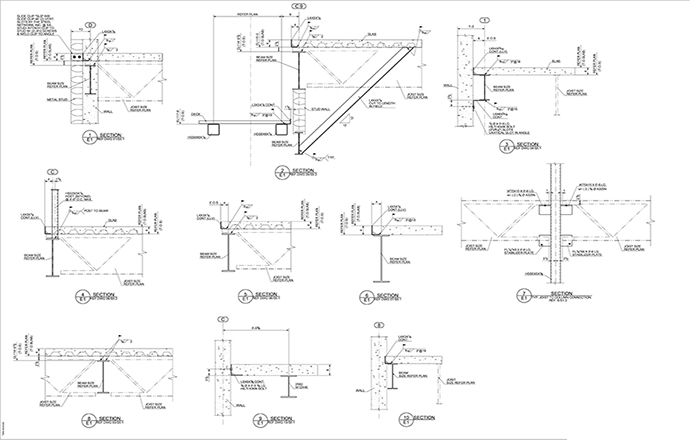
Fabrication, development, and Structural Drawings serve a unique purpose compared to Piping & Instrumentation Diagrams, electrical prints, and rationale designs. These drawings are meticulously created to scale and provide precise physical measurements of each component or structure. This enables accurate production or assembly of the part. While fabrication and development drawings may seem distinct categories, both play a crucial role in conveying detailed information about the manufacturing or assembly process.

Our Shop Fabrication Drawings include:

  • Column Connection.
  • Foundation with Base Plate details.
  • Connection Details used for Welding, Riveting, Bolting.
  • Steel Member Detail Drawings.
  • Steel Truss Member and Connection detailing.
  • Field and Shop Bolt Summary.

The key distinction between the two lies in the subject matter. A Fabrication Drawing focuses on providing details on how a single part is machined or fabricated in a machine shop, while a construction drawing focuses on illustrating the assembly of large multi-component structures or frameworks. Fabrication Drawings, also known as machine drawings, are primarily used in machine and fabrication shops where actual machining work takes place. These drawings typically depict the part or component as an orthographic projection, with each view including the necessary measurements for accurate replication.

Our commitment to delivering high-quality drawings within your clients’ specified time is impressive. This ensures that your customers can rely on you to meet their project deadlines, which is crucial in the engineering field.

Our highly skilled experts excel in implementing and adopting cutting-edge technologies for Steel Fabrication Detailing. Our comprehensive range of services includes Assembly Fabrication Drawing, Engineering Fabrication Drawings, Fabrication Drawings consulting, Metal Fabrication Drawings, Shop Fabrication Drawings, Steel Fabrication Detailing, Steel Fabrication Drawing, Steel Shop Drawings, Steel Structural Drawings, steel Structure Fabrication Drawings, Structural Steel Design and much more. We take great pride in utilizing our technical expertise to meet all our client’s project requirements with utmost precision and efficiency.

Steel Detailing Company provide accurate and precise steel fabrication detailing services. Our team of experts stays updated with the latest advancements in technology to ensure that we deliver top-notch results to our clients.

With our extensive experience in the industry, we understand the importance of assembly fabrication drawings, engineering fabrication drawings, and metal fabrication drawings. These drawings serve as the foundation for successful steel fabrication projects, and our experts are well-versed in creating them with utmost precision.

Our fabrication drawings consulting services are designed to provide valuable insights and guidance to our clients. We understand that each project is unique and requires individual attention. Therefore, our experts work closely with our clients to understand their specific requirements and provide customized solutions that meet their needs.

Shop fabrication drawings are crucial for efficient and accurate steel fabrication processes. Our team excels in creating detailed and comprehensive shop fabrication drawings that serve as a roadmap for the fabrication process. These drawings ensure that all components are fabricated correctly and fit together seamlessly, resulting in a high-quality end product.

Steel fabrication detailing requires a deep understanding of structural design principles. Our experts possess the technical skills and knowledge necessary to create steel structural drawings that meet industry standards and regulations. We pay meticulous attention to detail to ensure that all structural elements are accurately represented in our drawings.

At Steel Detailing Company, we take pride in delivering exceptional steel detailing services. Our team is committed to providing accurate and reliable steel shop drawings that help streamline the fabrication process. We use advanced software tools and techniques to create detailed and precise shop drawings that facilitate efficient fabrication and installation.

Whether you require steel structure fabrication drawings or steel fabrication drawings for any other purpose, our team is ready to assist you. We combine technical expertise with a commitment to customer satisfaction to deliver outstanding results every time.

Choose Steel Detailing Company for all your steel fabrication detailing needs, and experience the difference of working with a dedicated team of experts who prioritize accuracy, efficiency, and quality in every project. Contact us today to discuss your requirements and let us help you bring your steel fabrication projects to life.

At Steel Detailing Company, we pride ourselves on our open and accessible system. You can easily communicate with our team of engineers, draftsmen, and designers to discuss your project needs anytime. If you have any concerns during the development process, they are always ready to provide you with their dedicated support. Our experts strive to maintain a highly efficient relationship between you and us. We go above and beyond to meet all project requirements, exceeding our customers’ expectations. This commitment proves beneficial for both parties involved, ensuring a mutually advantageous outcome.

By offering a wide range of services, including Steel Detailing, Steel Shop Drawings, Metal Fabrication Drawings, and Structural Steel Shop Drawings, we cater to the diverse needs of your customers. This demonstrates our versatility and expertise in handling various types of projects.

Contact Us or email: info@7solutionindia.com to your structural Grating Detailing requirements.
Steel Detailing Company in USA
Steel Detailing and Estimation
Steel Company in USA
Steel Shop Drawings Services - Fabrication Drawings - Structural Steel & Shop Drawings

Lets Get In Touch Steel detailing company

7Solution India

INDIA – Registered Office

Steel Detailing Company – Contact Us

International Number: 1-870-521-5212

Email: info@7solutionindia.com

  • Structural Drafting
  • Structural Detailing
  • Structural 3D Modeling
  • Rebar Shop Drawing
  • Rebar Detailing
  • Steel Shop Drawings
  • Shop Drawing
  • Architectural Design
  • Architectural Drafting
  • CAD Drafting
Walgreens pharmacy island lake, illinois. Math and physics based artificial intelligence hedge fund and technology venture capital company. Coming.